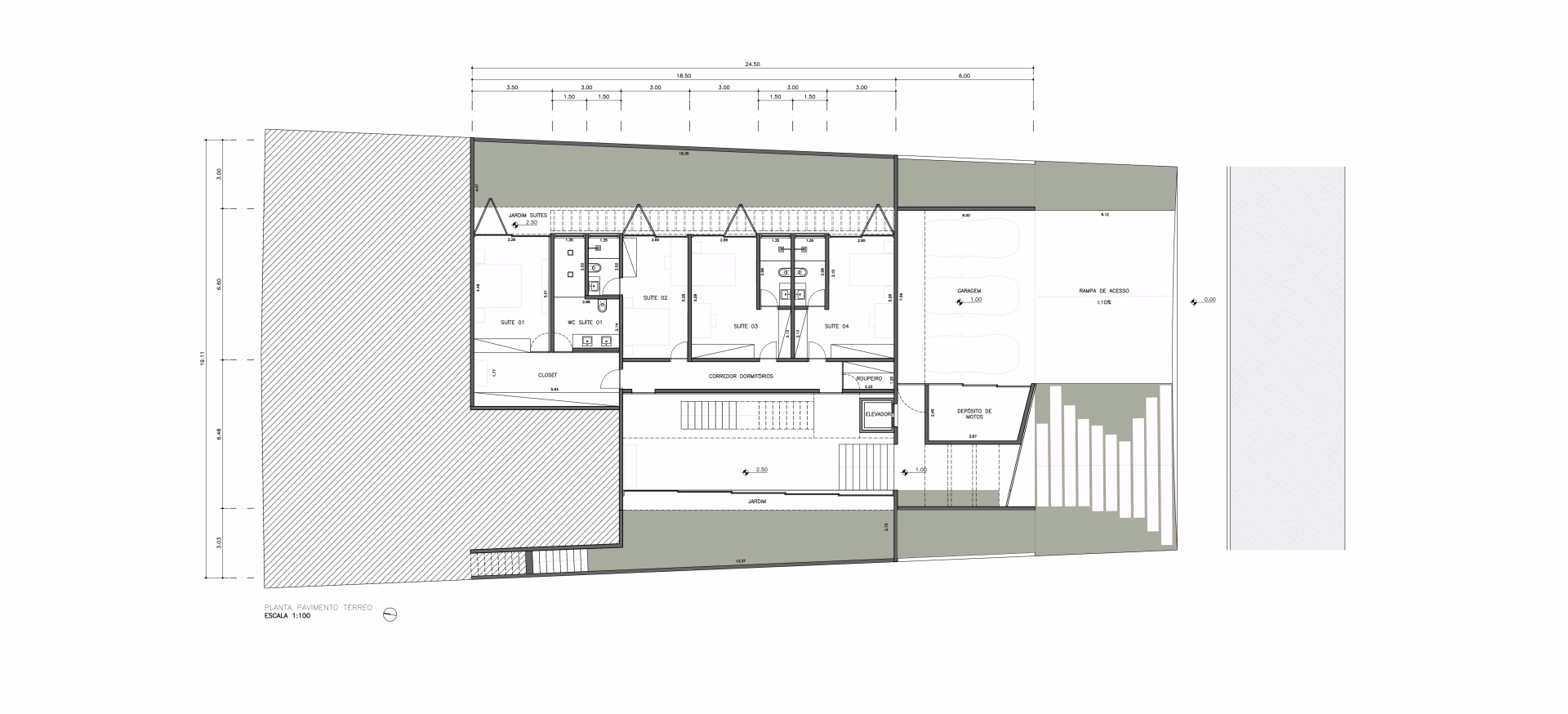
JD House - São Paulo

  • Year: 2022
  • Surface: 470m²
  • Localization: Campinas - SP
  • Structure design: StudioBim Engenharia
  • Facilities design: StudioBim Engenharia

Este site usa cookies para fornecer a funcionalidade necessária do site, melhorar sua experiência e analisar nosso tráfego. Ao usar nosso site, você concorda com nossa Política de Privacidade e uso de cookies.