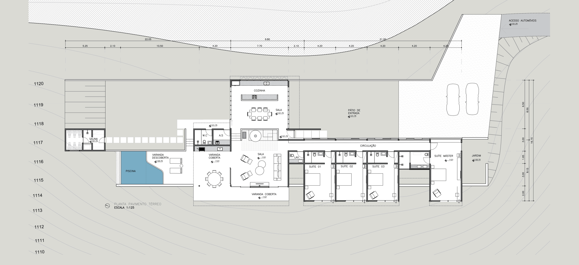
GS House - São Francisco Xavier - Version 02

  • Year: 2021
  • Surface: 355m²
  • Localization: São Francisco Xavier - SP
  • Render: Thais Freitas

Este site usa cookies para fornecer a funcionalidade necessária do site, melhorar sua experiência e analisar nosso tráfego. Ao usar nosso site, você concorda com nossa Política de Privacidade e uso de cookies.