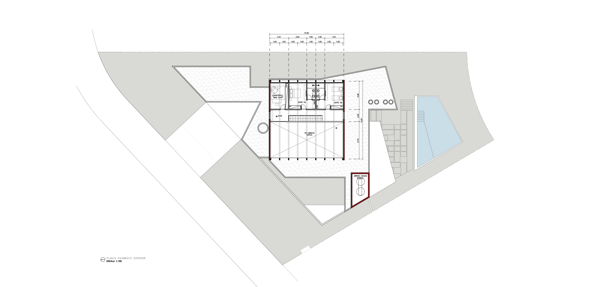
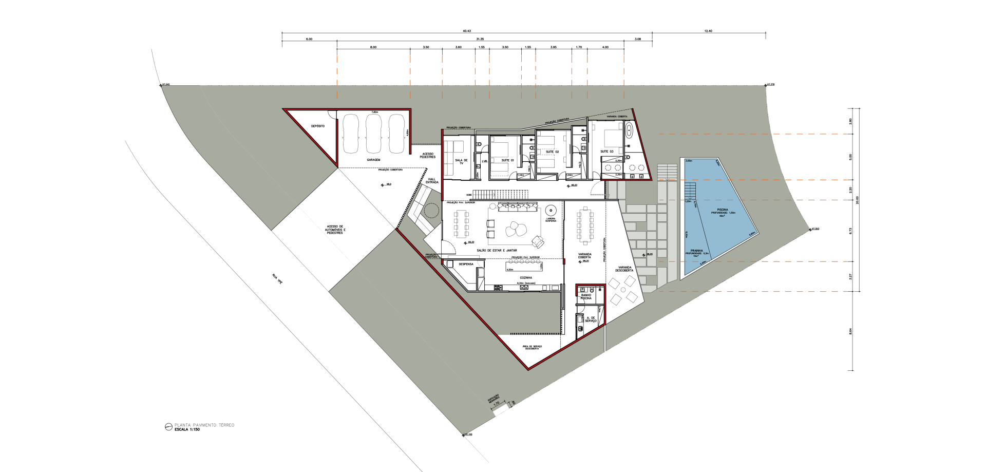
CS House - Itatiba

  • Year: 2021
  • Surface: 650m²
  • Localization: Itatiba - SP
  • Concrete Structure design: Tetric Engenharia
  • Facilities design: Tetric Engenharia
  • External Render: Solo CG
  • Internal Render: GS Studio

Este site usa cookies para fornecer a funcionalidade necessária do site, melhorar sua experiência e analisar nosso tráfego. Ao usar nosso site, você concorda com nossa Política de Privacidade e uso de cookies.